8′ x 8′ TIENDA COMPLETADA DE PISO PLANO – Solución de almacenamiento versátil
Descubra la comodidad de nuestro contenedor de almacenamiento de 8 pies con piso plano: una solución ideal para diversas necesidades de almacenamiento. Ya sea para el almacenamiento seguro de equipos o la contención de materiales peligrosos, este contenedor compacto ofrece flexibilidad en las aplicaciones.
Este contenedor está convenientemente disponible para su compra en línea y puede entregarse rápidamente a destinos en los EE. UU., incluidas opciones de entrega urgente para Puerto Rico y las islas cercanas. Para obtener más detalles, comuníquese con nuestro accesible equipo de ventas de contenedores.
CARACTERÍSTICAS DE LA NUEVA TIENDA COMPLETADA DE 8 PIES (PISO PLANO):
Nuevo: elaborado a partir de un contenedor de un solo viaje
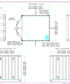
Construcción robusta de acero Cor-Ten
Puertas dobles exteriores con bisagras al final para un fácil acceso.
Seguridad mejorada con dos barras de bloqueo en la puerta y una caja de seguridad instalada de fábrica
Bolsillos para montacargas para un manejo eficiente
Piso Durbar duradero de 3 mm soldado al contenedor
Ventilación adecuada con 8 respiraderos.
Aplicaciones versátiles:
Solución de almacenamiento: almacene de forma segura equipos, herramientas o pertenencias personales.
Contención de materiales peligrosos: Ideal para almacenar productos químicos o materiales que requieren contención.
Taller portátil: cree un espacio de trabajo móvil con todas sus herramientas y equipos al alcance de su mano.
Explore más opciones con nuestro almacén con piso elevado de 8 pies y nuestro contenedor de almacenamiento con piso de malla abierta de 8 pies, que ofrece aún más versatilidad para satisfacer sus necesidades específicas. Actualice sus capacidades de almacenamiento con nuestros contenedores compactos y confiables.











